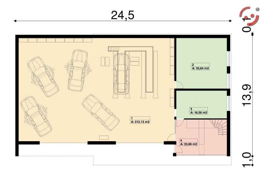
Auto serwis na 4-6 stanowisk oraz duża część mieszkalno-usługowa.
powierzchnia użytkowa: 488,22 m2
powierzchnia netto (po podłodze): 488,22 m2
powierzchnia zabudowy: 315,60 m2
powierzchnia całkowita: 551,85 m2
kubatura wewnętrzna (grzewcza): ok 1750,00 m3
wysokość do kalenicy: 7,1 m2
kąt nachylenia dachu w stopniach: 1,50% = ok. 0,8 stopnia
ściany zewnętrzne (materiały): beton kom., silka, pustak cer.
ściany wewnętrzne (materiały): murowane lub szkieletowe
strop nad parterem (rodzaj materiału): EPDM
strop nad poddaszem / piętrem (rodzaj materiału): żelbetonowy monolityczny
pokrycie dachu (rodzaj materiału): EPDM
ZAWARTOŚĆ PROJEKTU:
- Projekt Architektoniczny: tak
- Projekt Konstrukcyjny : tak
instalacja sanitarna: tak
instalacja centralnego ogrzewania: tak
wewnętrzna instalacja gazu: -
instalacja elektryczna : tak
Po zamianie bram garażowych na stolarkę okienną, budynek może spełniać funkcję salonu samochodowego lub innego pawilonu handlowo - usługowego.
Po zamianie bram garażowych na stolarkę okienną, budynek może spełniać funkcję salonu samochodowego lub innego pawilonu handlowo - usługowego.
