PS-BR-700-30 nowoczesny projekt budynku biurowego lub usługowego

Projekt budynku usługowego - biurowego, do dowolnej adaptacji na odpowiednią funkcję w zależności od potrzeb klienta. System konstrukcyjny pozwala na dowolny podział pomieszczeń. Budynek idealnie nadaje się do zabudowy w aglomeracji miejskiej, jak również na obrzeżach miast, przy halach fabrycznych. Dostępne różne wersje budynku, także z garażem oraz możliwoscią dostawienia do istniejących hal fabrycznych, produkcyjnych, czy magazynowych.
Technologia budowy domu
Sciany w systemie pustaka ceramicznego, ocieplenie styropianem lub wełna mineralna, dach EPDM lub odwrocony.
Projekt wyłącznie na zamówienia indywidualne.
Czas realizacji ok. 30 dni.
autor: Grzegorz Olesch PLUG STUDIO

Wizualizacje: 
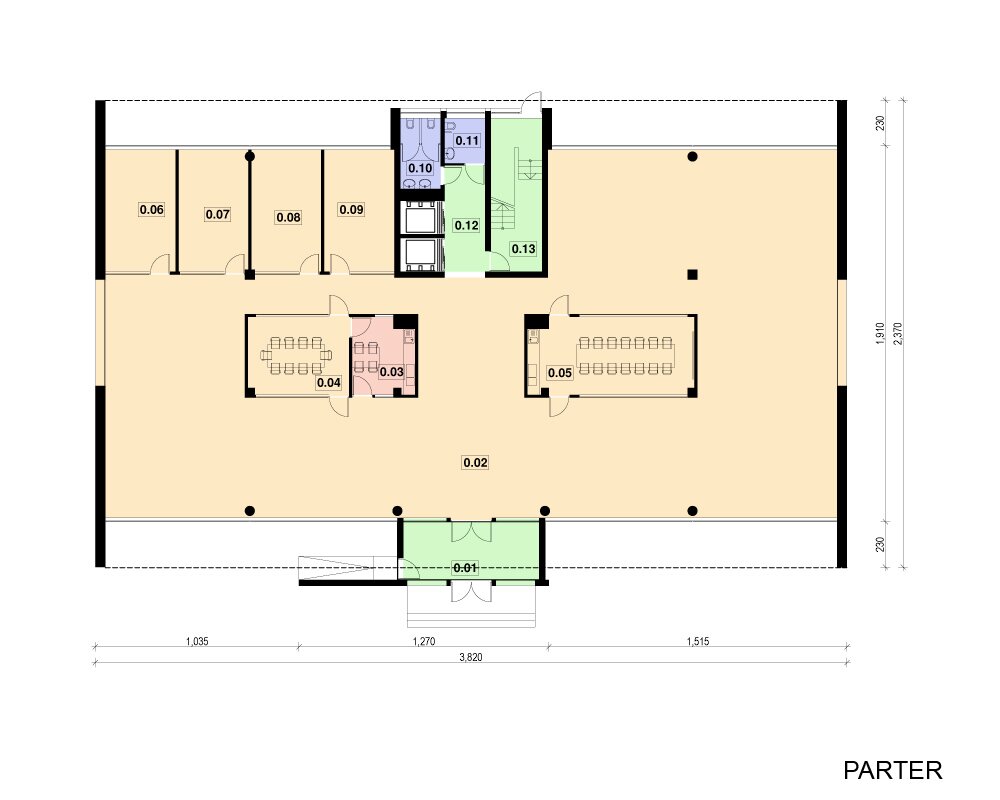
Rzuty: