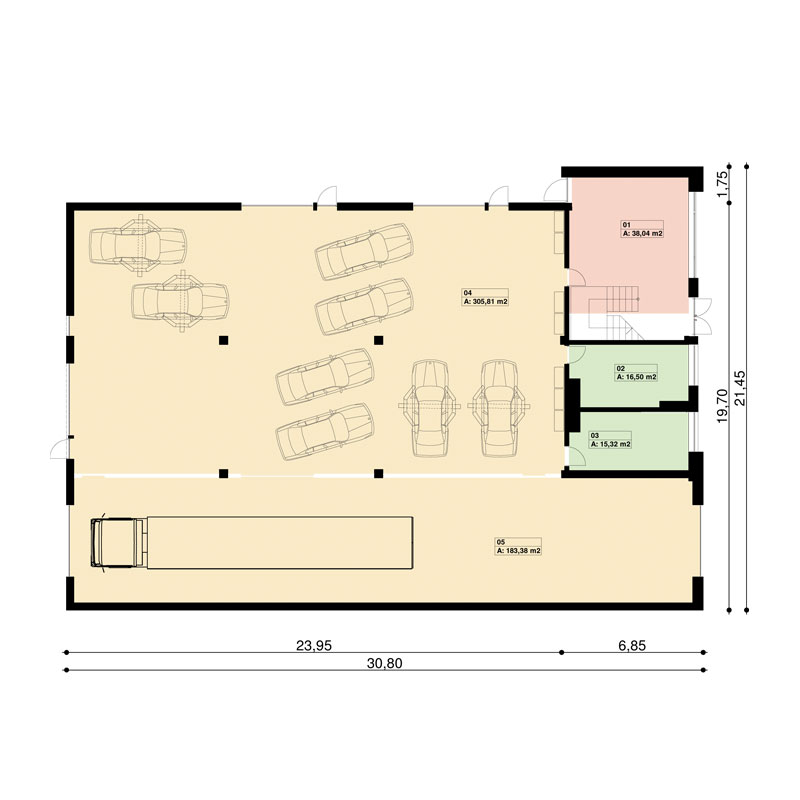
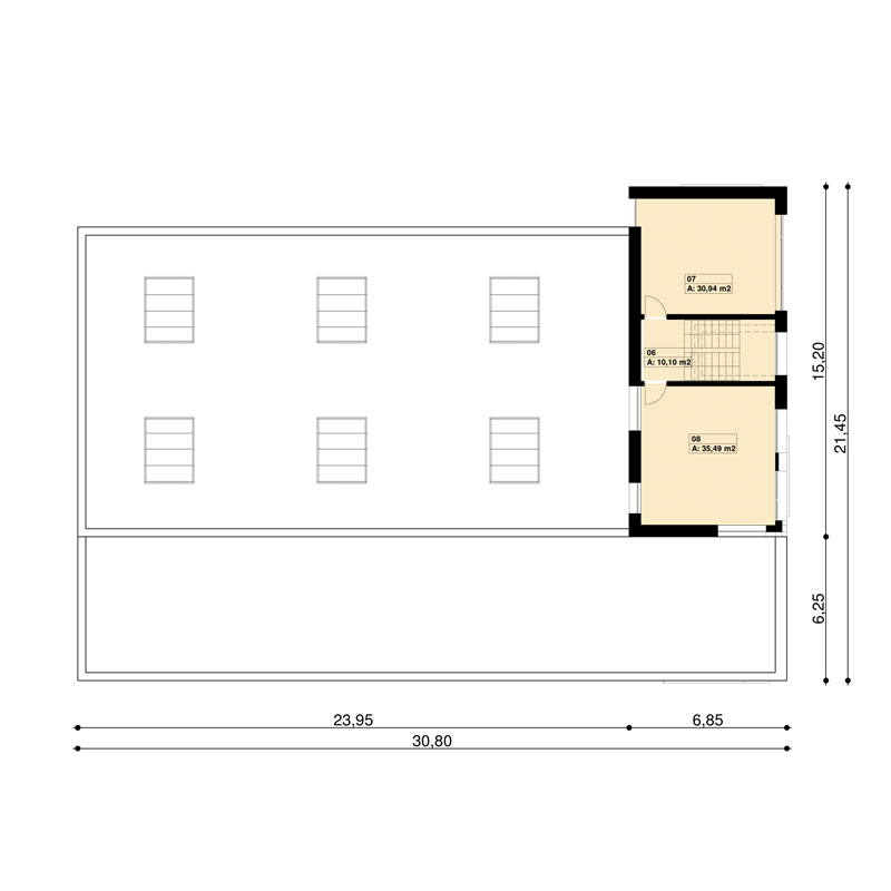
PS-SS-H4 AutoServis Warsztat samochodowy lub obiekt usługowy

Auto serwis na 6-10 stanowisk oraz duża część mieszkalno-usługowa.
Budynek może również pełnić funcję sklepu lub magazynu.

Wizualizacje: 
Rzuty: