nowoczesna architektura
plugshop
O nas
Projekty
Jednorodzinne
Wielorodzinne
Usługowe
Hotelowe
gotowe domy
ECOMINI
meble
Projects 1 col
schrony
Zamawianie
Kontakt
Szukaj projektu
Nazwa projektu
Kategoria (field_pr_kategoria)
Jednorodzinne
Wielorodzinne
Usługowe
-Domy weselne
-Handlowo-usługowe
-Przedszkola, szkoły
-Serwisy samochodowe
-Sklepy
-Sportowe
Hotelowe
Cena projektu
And
Pow. użytkowa
And
Ilość kondygnacji
MIN. SZER. DZIAŁKI
Typ dachu
jednospadowy
dwuspadowy
czterospadowy
plaski
Garaż
tak
nie
opcja
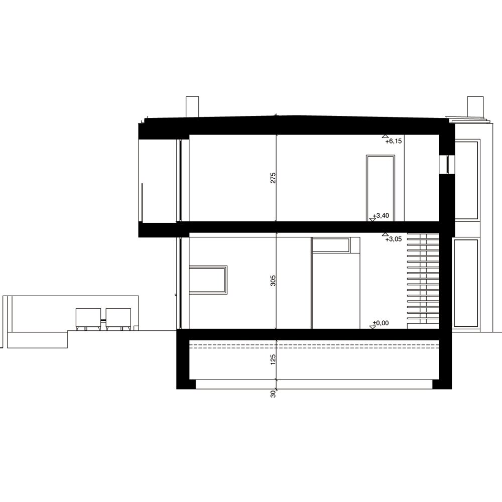
PS-CB-100-20G2 projekt gotowy katalogowy dach płaski eco
Projekt energooszczędny domu jednorodzinnego. Wymagane indywidualne zamówienie.
Wizualizacje:
Rzuty: