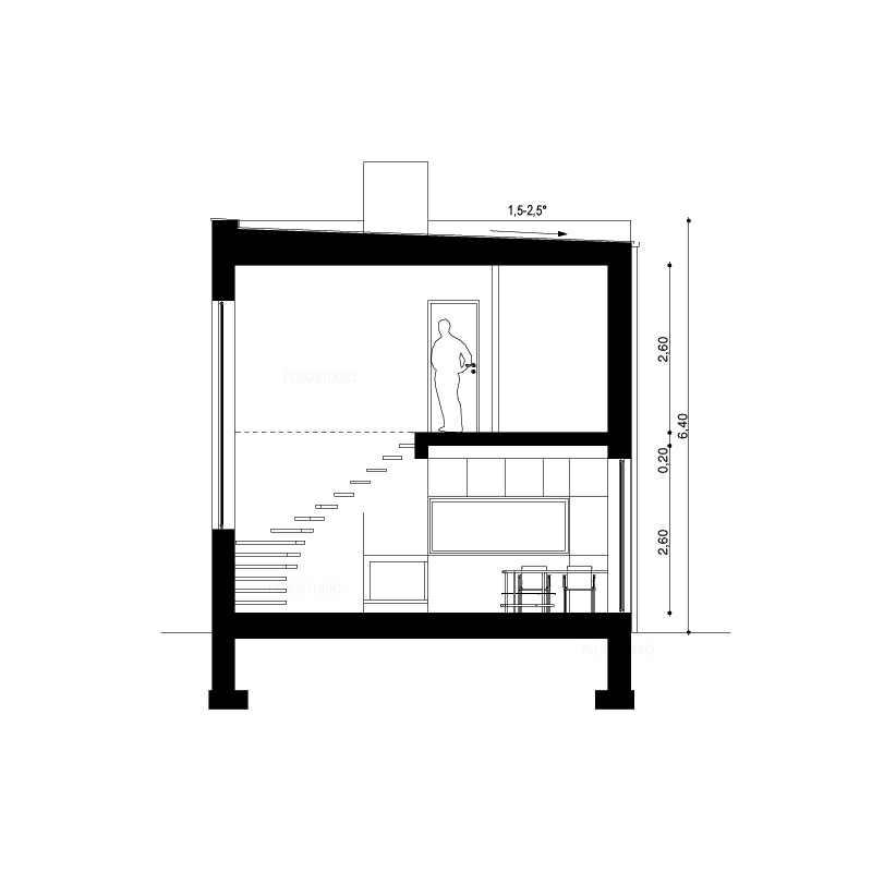
Projekt domu NF40-OO-40-20-V3 to idealna propozycja dla osób posiadających wąską działkę pozwalającą na usytuowanie domu w zabudowie wolnostojcej. Mimo niewielkiego metrażu, wnętrze zaprojektowano w sposób wygodny dla użytkowania. Na parterze znajduje się9 otwarta kuchnia z salonem oraz łazienka i hol, natomiast na pięrze - dwa pokoje. Projekt jest idealnym rozwiązaniem dla niewielkich rodzin. Posadowiony został na ławach fundamentowych. śaciany zewnętrzne dwuwarstwowe 20 cm, ściana nośna 15-20 cm + ocieplenie styropianem lub wełną mineralną. Ściany wewnętrzne z płyty gipsowo-kartonowej [na ruszcie]. Strop żelbetowy, stropodach żelbetowy. Pokrycie dachu EPDM i warstwa balastowa.
Budynek o dwóch pełnych kondygnacjach o niewielkich rozmiarach zaprojektowany dla rodziny 2+1, 2+2. W prezentowanej wersji spełnia wymogi standardu NF40 pozwalającego uzyskać dofinansowanie na dom energooszczędny. Projekt bardzo funkcjonalny i oszczędny w formie co pozwala zrealizować go stosunkowo niewielkimi kosztami. Ogrzewanie budynku za pomocą c.o. lub kominka lub grzejników elektrycznych. Projekt posiada odbicie lustrzane. Projekt występuje w wersji bez garażu, ale dostępna jest także wersja z garażem.
Autor projektu: Grzegorz Olesch
